一括表示

  ノルウェーでの使用 投稿者:tsuzuki   《URL》  

こんにちは
鍋CAD5で描いた図面が200枚ほどあります。(複数レイヤーを使って描いてあります)
この図面をノルウェーの方に送りたいと思います。
始めにntcad59b.lzhファイルを送りこれを解凍して鍋CADをインストールして送ったファイルを開いてみてとお話ししました。
しかしうまく行かないようです。
言語が違うとうまく開かないものなのでしょうか。(英語でのやりとりなので細かいところが今ひとつはっきり把握できない部分があります)
必要な情報が欠けているようなら問い合わせることは可能です。
私はあまりPCに詳しくなく、的をえていない質問なのかもしれませんが、どうぞよろしくお願いいたします。

図面は模型の5気筒と9気筒のエンジンの部品図です。
また私はあまりにver5に慣れすぎてしまい新しいバージョンに移行できないで相変わらずver5を使い続けています。

2011/05/27(Fri) 11:10:06  [No.3079]


  Re: ノルウェーでの使用 投稿者:管理人  
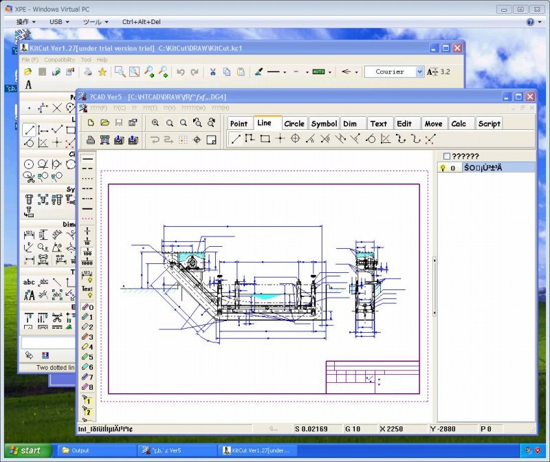
Re: ノルウェーでの使用 (画像サイズ: 800×672 121kB)

こんにちは
> 鍋CAD5で描いた図面が200枚ほどあります。(複数レイヤーを使って描いてあります)
> この図面をノルウェーの方に送りたいと思います。
> 始めにntcad59b.lzhファイルを送りこれを解凍して鍋CADをインストールして送ったファイルを開いてみてとお話ししました。
> しかしうまく行かないようです。
> 言語が違うとうまく開かないものなのでしょうか。(英語でのやりとりなので細かいところが今ひとつはっきり把握できない部分があります)

英語版XPで動かした画面を貼り付けておきます。
見ての通り動きますが、メニューと寸法線が文字化けして使えないようです。
後ろにある、きっとカットはマルチランゲージ対応なのでちゃんと表示します。
OSが何か知りませんが、Windows7Ultimateなら日本語モードにすれば漢字もそのまま表示するはずです。
あと、DXFで送って英語版のCADで読んでみてもらっては如何でしょうか?

> 図面は模型の5気筒と9気筒のエンジンの部品図です。
これって、星形エンジンですか?

2011/05/27(Fri) 15:39:21  [No.3080]


  Re: ノルウェーでの使用 投稿者:tsuzuki   《URL》  

早速返答ありがとうございます。
> OSが何か知りませんが、Windows7Ultimateなら日本語モードにすれば漢字もそのまま表示するはずです。

この旨メールを送ってみます。
> あと、DXFで送って英語版のCADで読んでみてもらっては如何でしょうか?

私も向こうもアマチュアなので正規版のAUTO CADを使うことはなかなか厳しいです。一応AUTOCADが使えるかあるいはDXFファイルから自分が使っているCADのファイル形式にDXFから変換できないかメールを出してみました。私も一時AUTOCADを使おうと海賊版を手に入れましたがあまりに鍋CADに慣れすぎていて結局移行できませんでした。

>

> これって、星形エンジンですか?
はい、そうです。投稿フォームに書いたURLにアクセスしていただけると出来たエンジンをご覧いただけます。
鍋CADなくしてこのエンジンは出来なかったでしょう。
感謝しています。

2011/05/27(Fri) 20:54:31  [No.3081]


  Re: ノルウェーでの使用 投稿者:管理人  

> 私も向こうもアマチュアなので正規版のAUTO CADを使うことはなかなか厳しいです。一応AUTOCADが使えるかあるいはDXFファイルから自分が使っているCADのファイル形式にDXFから変換できないかメールを出してみました。私も一時AUTOCADを使おうと海賊版を手に入れましたがあまりに鍋CADに慣れすぎていて結局移行できませんでした。

リンクコーナーにも貼っていますが、AutoCAD互換のフリーCADで、A9CADなるシンプルな物があります。
英語版しか有りませんが、お試し下さい。
http://www.a9tech.com/

> はい、そうです。投稿フォームに書いたURLにアクセスしていただけると出来たエンジンをご覧いただけます。

拝見致しましたが、凄い出来映えですね、エンジンと言うより芸術作品の域だと思います。
不要な図面がありましたら、サンプルとして使わせて頂けませんかね?
ご検討お願いします。

2011/05/28(Sat) 13:54:43  [No.3082]


  Re: ノルウェーでの使用 投稿者:tsuzuki   《URL》  


> リンクコーナーにも貼っていますが、AutoCAD互換のフリーCADで、A9CADなるシンプルな物があります。
> 英語版しか有りませんが、お試し下さい。
> http://www.a9tech.com/
>
情報ありがとうございます。kitcutを今トライしてもらっています。
駄目そうならまた情報として送りたいと思います。

> 不要な図面がありましたら、サンプルとして使わせて頂けませんかね?
> ご検討お願いします。

5気筒のエンジンのものなら問題ないと思います。
どこへお送りすればよろしいでしょうか。私のメールアドレスに送り先をお知らせいただければそこへお送りします。(ノルウェーへ送るのと比べるととても楽です)
素人作図で、なおかつ自分で作りよいように書いた物なのでプロの方がご覧になるとわかりにくいところもあるかもしれません。

2011/05/30(Mon) 16:43:21  [No.3085]


  図面頂きました。 投稿者:管理人  

参考資料として、ありがたく使わせて頂きます。
ありがとうございました。

2011/06/03(Fri) 04:29:08  [No.3097]